MAN Roof Renovations, 2013
Renovations of A30 and A40 Roofs and A41 Enclosure

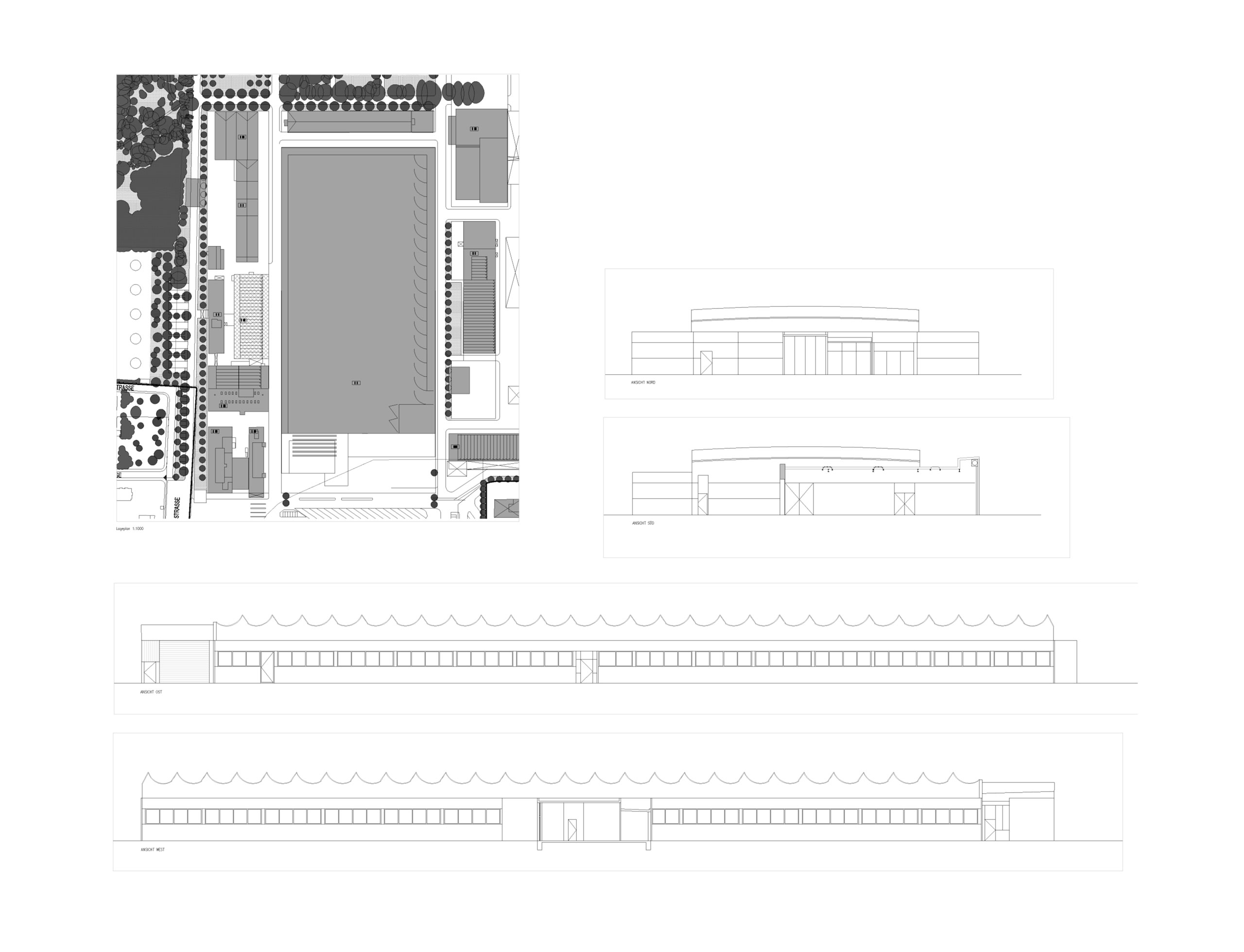
Between 2011 and 2013, a number of renovation tasks were carried out on the roofs at the MAN site in Munich’s Allach district.
For example, the roofs of halls A30 and A40 were completely renovated. The renovation included new mullion and transom glazing as well as insulation and waterproofing. Furthermore, the truck exit to Hall A41 was enclosed.
These and other measures were carried out within the framework of a general planning framework agreement.
Category
Typology
Status
Completed
Timeline
2011–2013
Gross floor area
7.600 m²
Service phases
1, 2, 3, 4, 5, 6, 7, 8, 9
Client
MAN Nutzfahrzeuge AG


Category
Typology
Status
Completed
Timeline
2011–2013
Gross floor area
7.600 m²
Service phases
1, 2, 3, 4, 5, 6, 7, 8, 9
Client
MAN Nutzfahrzeuge AG

— Behind the Scenes